薄膜晶體管液晶顯示器廠房設施要求:

薄膜晶體管液晶顯示器廠房設施要求:
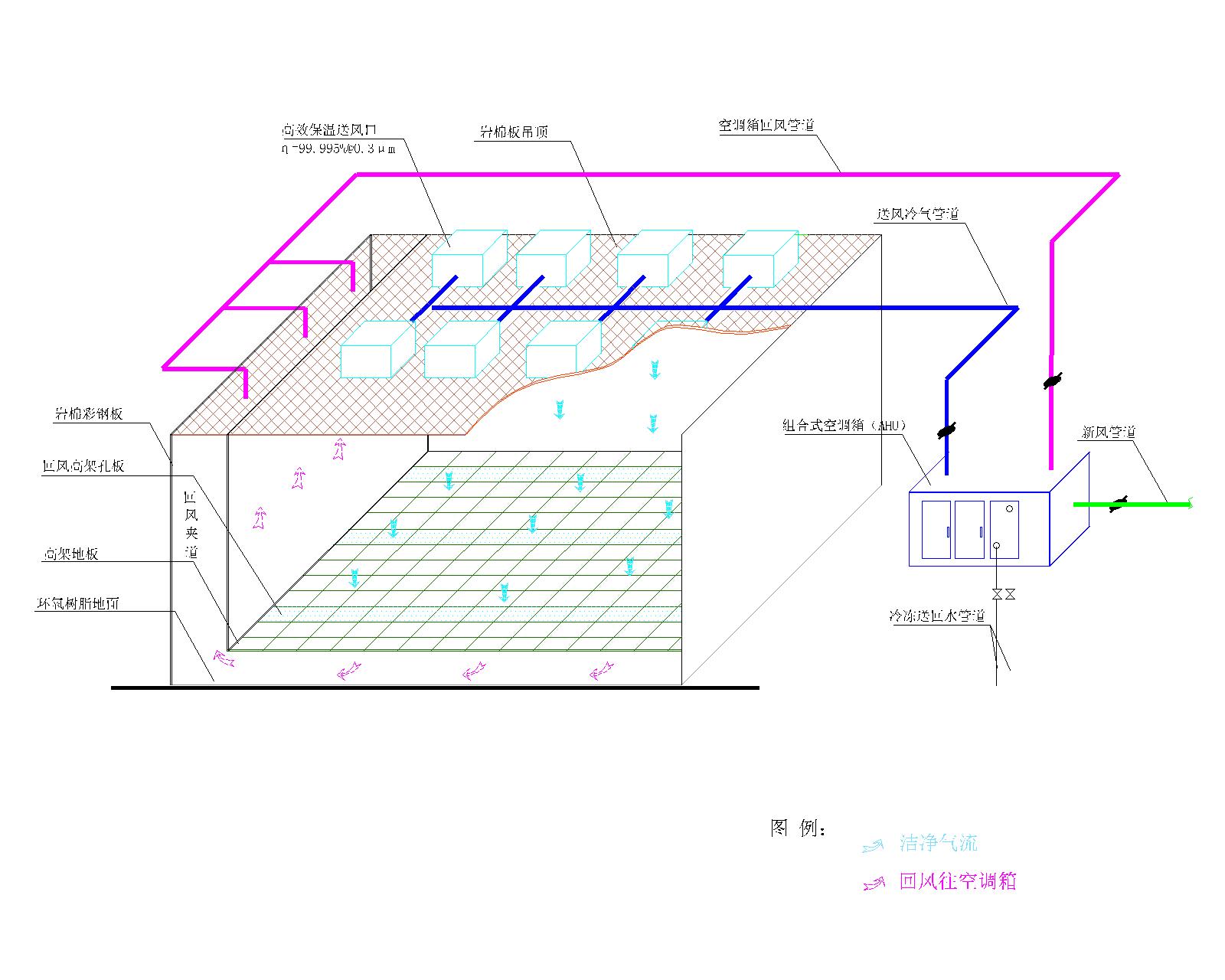
薄膜晶體管液晶顯示器工廠設計應滿足薄膜晶體管液晶顯示器生產所需要超大空間潔凈環境的要求。
生產的主要工序應完整、配套,陣列、彩膜和成盒工序段宜設置在同一廠區內。
凈化空調系統分開設置的原則除應符合現行國家標準《電子工業潔凈廠房設計規范》的有關規定外,還應符合下列規定:
1 溫、濕度基數差別大的潔凈室應分開設置凈化空調系統;
2 溫、濕度允許波動范圍差別大的潔凈室應分開設置凈化空調系統。
凈化空氣調節系統的新風應集中進行熱、濕、凈化處理,新風處理機組的設置應符合下列規定:
1 送風機應采取變頻措施;
2 空氣應經過粗效、中效、高效過濾器三級處理;
3 陣列、彩膜、成盒廠房應設置備用新風處理機組;
4 陣列、彩膜、成盒廠房的電機與風機應采用直聯驅動方式,且有良好的減振措施;
5 新風的吸入口位置應遠離排放有害物或可燃物的排氣口;
6 加濕方式宜采用溫水淋水室;
7 應有良好的氣密性,在工作壓力下的漏風率不得大于1%。
陣列、彩膜、成盒廠房凈化空氣調節系統的循環風宜采用風機過濾器機組和干冷卻盤管處理,模組和背光源廠房凈化空氣調節系統的循環風宜采用循環空氣處理機組處理。
干冷卻盤管的設置應符合下列規定:
1 迎面風速不宜超過2.5m/s;
2 空氣側阻力不應大于40Pa;
3 布置在同一潔凈室(區)內的干冷卻盤管,在工作條件下空氣側阻力相差不得大于10%;
4 冷凍水的供水溫度宜高于潔凈室(區)內的露點溫度;
5 干冷卻盤管應設置排水系統,非落地安裝的干冷卻盤管應設置積水盤。
風機過濾器機組的設置應符合下列規定:
1 應根據空氣潔凈度等級和送風量選用;
2 宜采用直流調速電機;
3 機組應采取消音措施,消音裝置不得采用產塵材料,且其燃燒性能等級應達到B級;
4 潔凈度等級為7級~9級的潔凈室(區)不宜采用聚四氟乙烯濾料的過濾器;
5 應便于安裝、維修及過濾器更換。
當采用新風處理機組+風機過濾器機組+干冷卻盤管的凈化空調系統時,潔凈區各部位的風速應符合下列規定:
1 上技術夾層不應大于4m/s;
2 下技術夾層不應大于3m/s;
3 回風夾道不應大于4m/s。
相關規范:
GB 50472-2008 電子工業潔凈廠房設計規范
GB 51136-2015 薄膜晶體管液晶顯示器工廠設計規范
GB 50073-2013 潔凈廠房設計規范
GB 51110-2015 潔凈廠房施工及質量驗收規范
GB 50019-2015 工業建筑供暖通風與空氣調節設計規范
GB 50243-2016通風與空調工程施工質量驗收規范
GB 50016—2014(2018年版)建筑設計防火規范